These home owners just moved into their new home and they can’t wait to have a new master retreat that matches this era and their style. Although the space is really big, there is not a lot of functional space. I am overhauling the entire Master area and create a new master bathroom with an infrared sauna, a bigger master closet, and updates to the master bedroom.
~Before pictures~

~Design Process~
I strongly believe we should explore all options for the master bathroom and bedroom area. That is why I presented them 6 different floorplans, some are have more changes than other.
Moodboard 1A-1B-1C
Are all more on the conservative side, leaving most of the wet component in its place to avoid large costs.
Moving the bathroom wall to create a more defined sitting area.


Mood board 2
Is creating the MOST beautiful and luxurious MASTER CLOSET.

Mood board 6 and 7
Here we are exploring the want to add the current laundry room to the footprint of the Master.

————————————————————————————————————————————————————————————
This is what happens during the mood reveal at the client’s home. We talk at length about pro and cons for the 6 suggested designs, then we start taping the floor and visually look at the options.


____________________________________________________________________________________________________________
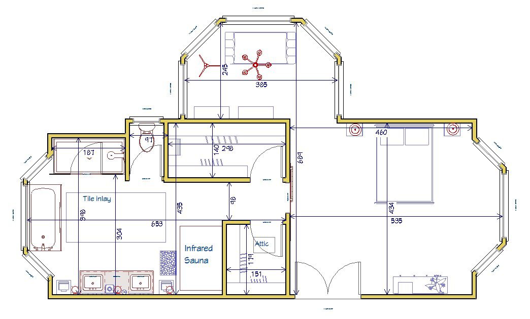
We are pretty solid on Design 1B

Master Retreat with Sauna

UPDATE NOVEMBER

Â
UPDATE OCTOBER
