NEW PROJECT: KITCHEN SPACE REMODEL: DREAM KITCHEN FOR HER, OPEN-CONCEPT FOR HIM
Helping my clients to come up with a better kitchen lay-out for their cherished home.
Despite this large kitchen, there is no space for mom to sit and eat at the eating bar.
– The kitchen will get a make-over with a more logical footprint and a better configuration to compliment this gorgeous house.
– We will relocate the mudroom to the garage to benefit the kitchen footprint.
– We will update and upgrade the office area.


JULY 2019 UPDATE
* In Design 1A: I am staying close to the current foot print. I based my design as I got inspired by this gorgeous Café 6-burner gas range in Matte White with Brushed Bronze. By adding a full size rage, we can omit the double oven cabinet that only takes up space. I updated the kitchen and upgraded the office, adding round dining nook table for a nice flow, and a full functioning bar area with extra storage.
* Design 1B: Has a bigger island and changed the design with a bar height table, to show different options and how to play with the space.

* With Design 1C: I had a big breakthrough: I moved fridge over to create a better flow and balanced look and added 6â new kitchen window to accommodate fridge.

* Design 1D: a small change to 1C, added longer storage cabinets.

*Design 2 That is where I go REALLY CREATIVE: Making the kitchen smaller to make it bigger đ Adding more walls to the kitchen for a cozier feel. And creating the ultimate homework space for the girls. This way the mom has the kids close and they get a gorgeous room, thinking out-of-the-box and changing rooms around. The home office will now be swapped for a single room in the front of the house.
Also, gives a nice look in the foyer.

*Design 3A: Created the âultimate dining roomâ with custom designed accent wall. The current office wall will move to âoldâ dining room.
Again, being creative with spaces and see what design best fits the homeowners lifestyle.
*Design 3B: created the âultimate dining roomâ using a rectangular table.
To complete the entire design it was eminent to relocate the mudroom to the garage.
*Floor plan Mudroom-1: Create a beautiful and practical mudroom and design a functional home gym behind the 6â long mudroom.
*Floor plan Mudroom-2: Create a storage area bending the mudroom and have an exposed gym.

In this video you van hear all about the design process for this this First Design Reveal.
AUGUST 2019 UPDATE
During my design presentation the homeowners suggested to get rid of the office wall in the nook kitchen all together.
And therefore, asked me to explore the option if what would happen if we took down the wall. to explore the option if what would happen if we took down the wall.
Opening up the wall with give us tons of new opportunities and new ideas to create.
Here is the overview of Design Round #3.
Floor plan 1: Omit office wall and expand kitchen into breakfast nook.

Floor plan 2: Remove only one section of the wall.

Floor plan 3: Remove both walls, but keep column for support.
(Until we open up the wall we don’t know if this column is only architectural interest or really supporting the floor above)

Floor plan 4: Remove everything an dopen up the space as much as possible.
Creating the ultimate dining room and adding a cozy seating area with a bar.

SEPTEMBER 2019 UPDATE
The homeowners have decided to follow through with opening up the wall. This design will be spectacular!
We already had my contractor come out and check the walls and structure of the house.
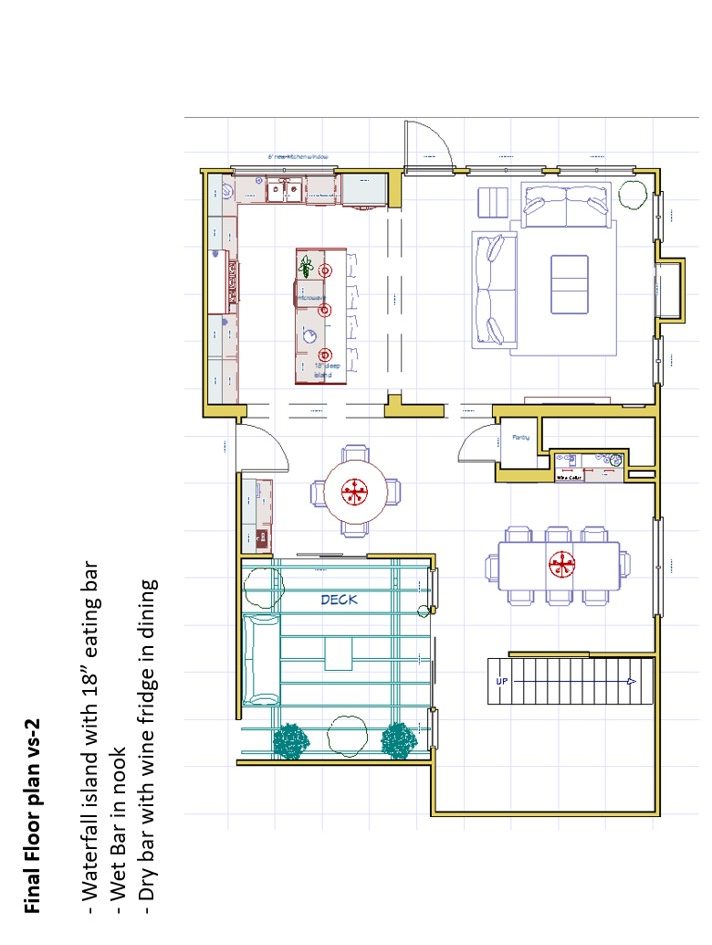
We have settled on the final floor plan: open concept living with a beautiful flow between the kitchen, the island, the nook area into the dining room.

Â

TIME TO SHOP:
Time to visit the Kitchen & Countertop showroom.
We decided on a gorgeous light gray/slightly greenish kitchen cabinetry for the perimenter and a deep black island with a waterfall countertops.
To play a little bit with color and to give the island some reason to be there as it would have disapperared in this huge open space.
The countertop will be Calacatta Laza with dramatic movement, milky white background and realistic soft brown veining. Â 
OCTOBER 2019
This morning we went shopping for backsplash tiles and some accent tiles for the dining room wine bar area.
See you how the designer lays the herringbone pattern for the backsplash.

NOVEMBER 2019
Who doesn’t want a kitchen like this, finalizing on all materials. 
MORE SHOPPING TRIPS
Looking for sinks and faucets.
The sinks will be stainless steel and the faucet will be brass. A theme color that will pulls through the entire kitchen and home.
The pulls will be brass as well.

DECEMBER 2019
Tying everything together, remodel starts January 8, 2020.

2020 THE REMODEL HAS STARTED
Week 1
Our Remodel is in full swing, what a difference a couple of hours make!
Remodel Day 1

Remodel-Week 1

Open-concept main floor:
In Design round #2 we decided to expand our remodel from just kitchen to open-concept and including the far away dining room in the overall design as well.
That meant we were moving the current home office wall to a new location in the home.

A big part to create this open concept main living floor remodel is to let in as much light as possible. See this week’s progress.
Adding a huge 6 ft (1.8m) window. Let your design not be defined by the current window size!

Sometimes it takes a little lot and a lot of tries to get the exact floor that you wanted. You can better spend 1 hour extra on getting the color just right, than have your entire stained of painted with the color you do not like.

Finding these treasures under the “old” kitchen island, can be the inspiration for something amazing.
While I was on-site to check in on the remodel, we also picked a new wall color. The current wall color will not work anymore with the sophisticated new kitchen (gray/green cabinetry and black island) that is being built. We decided to go with an off white color to clean the color palette and once we have all the new furniture in, the kitchen is installed, the new floor is installed, we can look at an accent color for maybe one wall.

This remodel is going fast. Kitchen cabinets in a sophisticated gray/green cabinetry are installed, the black island in the middle is in.
All walls are opened and finished.
Gorgeous new hardwood flooring for the entire main level.

What a difference a window makes!

We are almost dong with this remodel.
– The countertops have been installed: kitchen, waterfall island, nook area, and in the dining room.
-The backsplashes are installed: a different one in the dining room.
-Most for the new furniture is in.
-We have gorgeous new light champagne color hardwood floor throughout the house.
-All new lights are installed: island pendants, chandeliers and wall sconces.

